MB-86EI Fireproof windows and walls of class EI15, EW30, EI30

  • class E 1500 Pa

    EN 12208 Watertightness
  • > 0,86

    W/(m2K)

    Thermal insulation UW

  • class 4

    EN 12207 Air tightness

  • class EI30

    Fire resistance

MB-86EI is used for fabrication of EI30 fire-rated openable windows to EN 13501- 2+A1. MB-86EI is based on MB-86 system, and has excellent thermal, sound reduction, water resistance and air leakage performances. The MB-86EI combines the advantages of a classic window system with the properties of a fire partition walling – the construction meets all the requirements of the applicable regulations and standards, especially regarding energy saving and environmental protection, while ensuring proper fire safety. The system is classified as non-fire spreading (NRO)

TECHNICAL SPECIFICATION

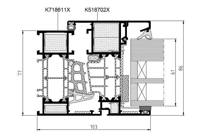
  • Frame depth 77 mm
  • Casement depth 86 mm
  • Glazing thickness frame: 13 to 61 mm, casement: 22 to 70 mm
  • MAX. SIZE AND WEIGHT OF THE CONSTRUCTION
  • Max casement size (H×L) H to 2400 mm, L to 1300 mm
  • Max casement weight 130 kg

References

HİSAR SCHOOLS

İstanbul, Türkiye

ADANA SANAYİ ODASI

Adana, Türkiye